BESPOKE LUXURY
TRANSFORMATION
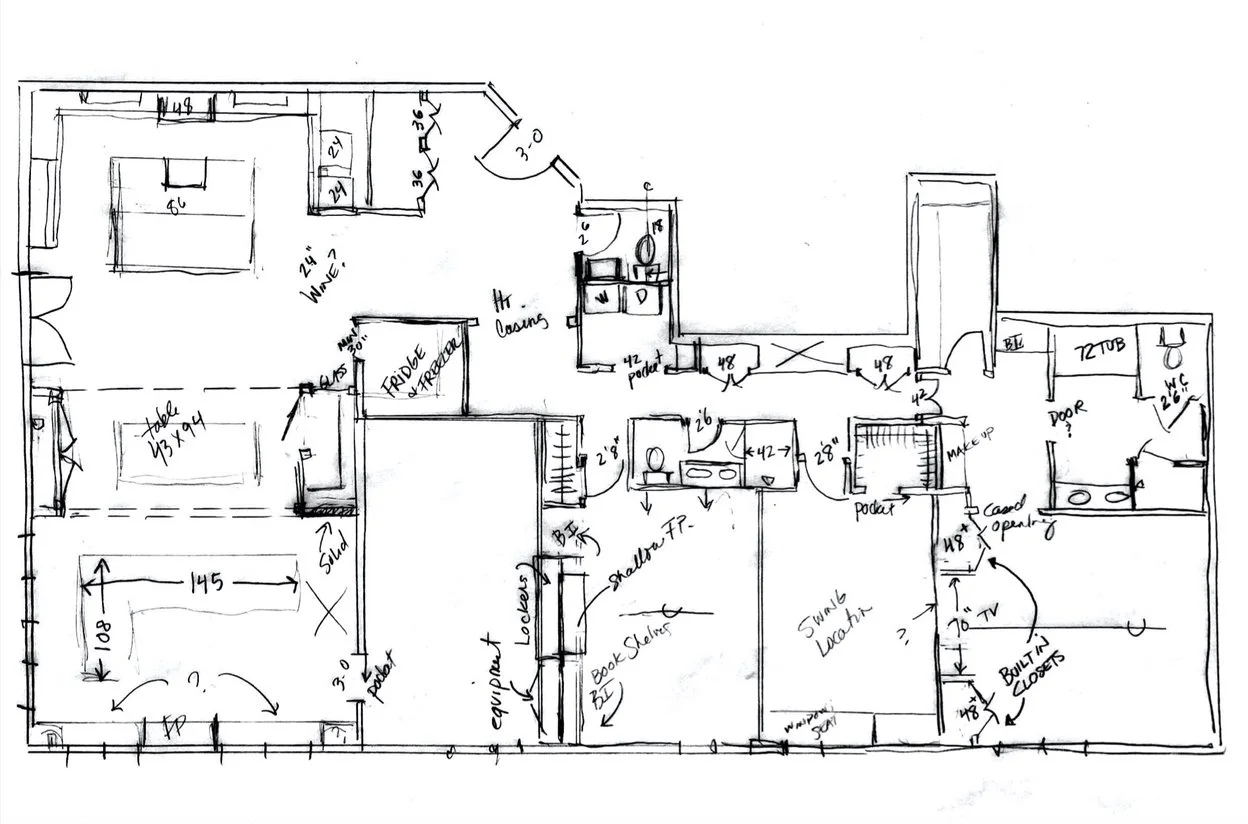
Before & During
After

